Regina Naturii: proiect de design interior îndulcit estetic
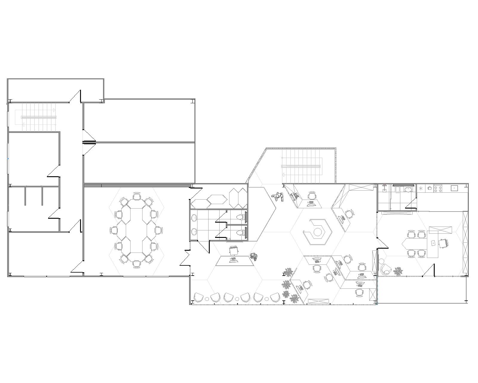
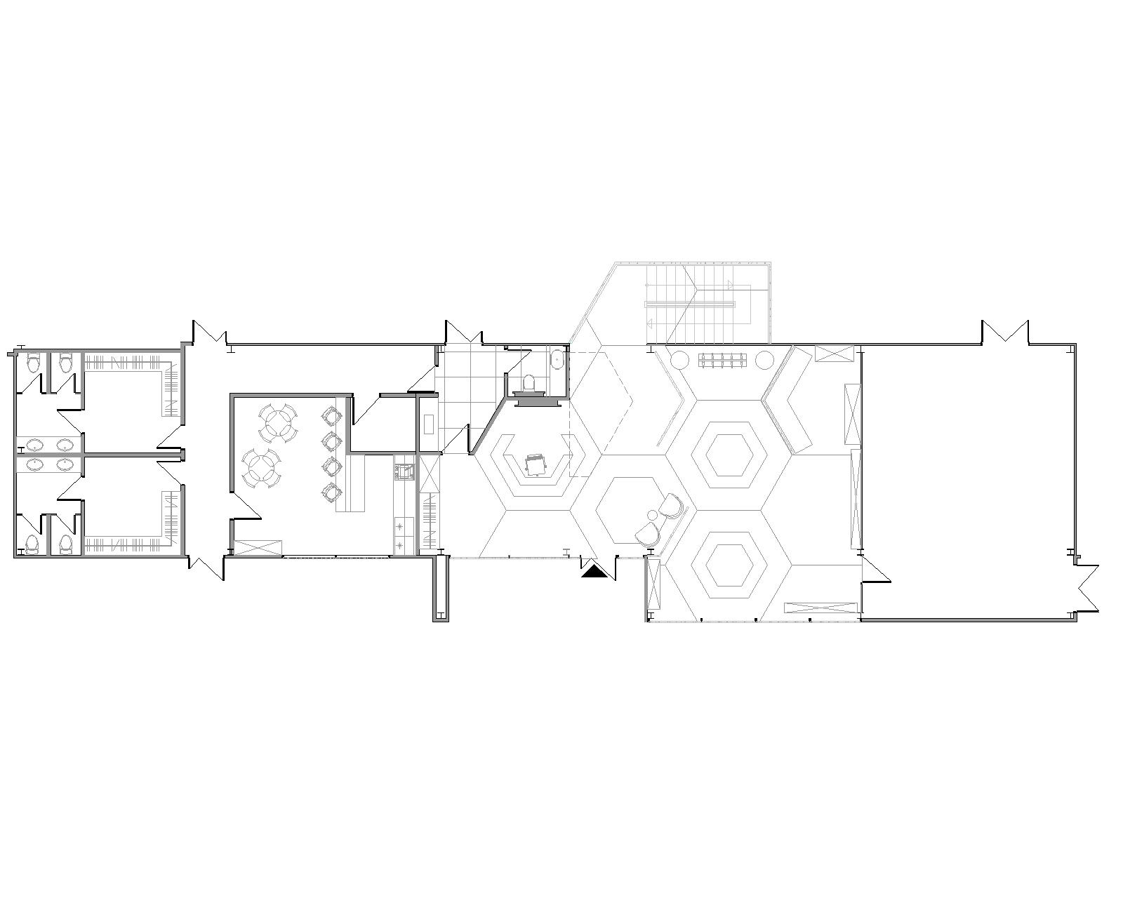
Pentru noi, proiectul de design interior pentru clădirea administrativă „Regina Naturii” a devenit una dintre provocările mari. Trebuia să îmbinăm într-o singură zonă, destinată unei fabrici moderne de producere a mierii, spații cu destinație diferită, ce trebuiau să fie incluse într-un singur concept de design, urmând aceleași motive. Clădirea de 2 etaje a întreprinderii a fost divizată astfel încât să îndeplinească cerințele mai multor sectoare de lucru. Parterul a fost rezervat pentru zona de recepție și sala de expoziție. Cel de-al doilea nivel are spații rezervate pentru zona de recepție, sală de conferințe, oficii și alte încăperi auxiliare.
Ca sursă de inspirație au servit formele geometrice ale fagurilor, figurile hexagonale regăsindu-se în întreg complexul. Acestea au devenit accentele ce vorbesc din start despre specialitatea fabricii. Elementul a fost aplicat pe pardoseala epoxidică care divizează spațiul prin culoare în 2 zone: recepția și sala de expoziție. Formele hexagonale ale pardoselei sunt divizate una de alta prin rosturi cu LED, ce creează un joc viu de lumină. Hexagonul a fost utilizat și în piesele de mobilier, care se combină perfect cu formele de pe pardosea. Elementele hexagonale se regăsesc și în decorul pereților. În acest sens, am utilizat modulele MADLAB, care au aceeași formă, în sala de conferințe în biroul administrativ.
Zona recepției a fost concepută din piatră decorativă. Aceasta are aspectul unei roci, la fel hexagonale, ce dă senzația unui aer rece , dar proaspăt. În același timp, fundalul peretelui din alamă, încălzește atmosfera, înnobilând-o.
Fiind un proiect complex, am decis să împrumutăm din unele elemente deja existente. Pereții din sandwich ai fabricii ne-au inspirat să optăm pentru continuarea acestei idei pe tot perimetrul spațiului de la parter, doar divizând zonele prin culori. Astfel am camuflat zona de vestiar cu panouri din mdf vopsit, care imite forma unui perete sandwich. Am utilizat panouri din policarbonat ca elemente de separare a spațiilor, atribuindu-le și rol decorativ datorită luminii LED care a fost integrată în structură.
Am optat pentru utilizarea unui corp de iluminat masiv, în formă de ramuri care se extinde de la etaj la parter, creând o continuitate semantică și spațială. Tot fagurii de miere au sugerat și gama coloristică alcătuită din galben, alb și gri. Combinația acestora creează un spațiu luminos, relaxant și eco. În general, întregul concept s-a bazat pe principiul ecologic, acesta fiind caracteristic politicii fabricii, Astfel, am utilizat materiale simple și naturale precum beton, piatră, argilă și alamă, iar accentele împrumutate din fagurii de miere, culoarea vie galbenă și naturalețea materialelor au dat viață și stil unui spațiu industrial deja existent.
An: 2019
Suprafață: 600 m2
Locație: Chișinău
Branduri: MADLAB, Smartlight, Sika, Atas Lighting, Loggia
Echipă: Alexandrin Buraga, Marco Ballerini, Vitalie Robu, Veronica Juc, Maria Melnic, Cevdari-Rusu Iulia
Concept Design Interior: AB + Partners
Photo: Oleg Bajura
















































































