Office in London – Modern British Strictness
The design of this London office has shown us that British strictness can have more variables. The purpose of this space is to create a multifunctional area with well-defined delimitations. To unify the interior space, which has an irregular geometric planning, we have chosen to paint the ceiling and the interior walls in dark colours.
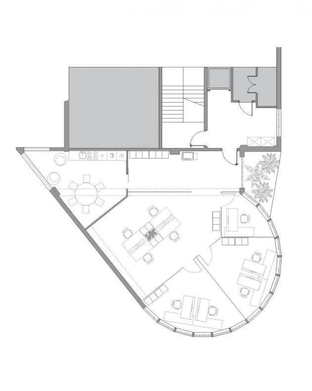
The concept of the office differed from that of an open space, but also from that of a classic office. Starting from the necessity of an obligatory compartmentalisation and the idea of creating an airy space, we have solved the problem of offices zonal division using satin glass walls, personalized with elements of the identity of the customer company – Cornelius UK Ltd. Having this complex detail, we have opted for simple lines of the interior and for the light hues of furniture, which are found in all the elements of the office.
In addition to the sensation of strictness gained by the space, this unification has given us the opportunity to focus attention on furniture items and decoration elements. Despite the fact that the project was executed in the Great Britain, they were produced by the local company MADLAB, being perfectly adapted to the requirements and dimensions of the office. The colour range is simple, with neutral hues like white, black and grey. To dissolve the strictness of the space we have chosen to play with details. We have a metal desk and two grey velvet chairs in the reception area playing the role of accents. Also, as a point that speaks about the identity of the space, we repeated on the walls of the staircase the element of logo, also used on the satin glass, this time accentuating it with a blue hue and accompanying it with handrails to stairs of the same colour.
The simplicity of lines is continued by the form of luminaires. Their modern geometric forms give a new breath to British conservatism. Flooded by light, the space was completed by plants, which come as a green patch animating the boring space.
Time was a big challenge for the Office in London project. We were ambitious to design the office in just three weeks and to ensure the delivery of the necessary furniture and decoration from Chisinau to London so that in two months we can finally admire the results of its accomplishment.
Thus, we created a modern space, balanced chromatically and compositionally, preserving the British reason and restraint airs and completing it with modernism.
Year: 2019
Surface: 350 m2
Location: London, UK
Client: Cornelius UK Ltd
Brands: Madlab, Atas Lighting, Kastel, Elllo Studio, Roberto Rossi, Ajur Lux, Moldeco
Team: Alexandrin Buraga, Marco Ballerini, Vitalie Robu, Sergiu Tanasiev, Cristina Cortac, Andrei Vicol, Iulia Cevdari, Stanislav Balan, Maria Moraru.
Interior Design: AB + Partners































